Áñ°Üã±â µî·Ï RSS 2.0
Àå¹Ù±¸´Ï ÁÖ¹®³»¿ª ·Î±×ÀΠȸ¿ø°¡ÀÔ ¾ÆÀ̵ð/ºñ¹Ð¹øÈ£ ã±â
home
[±â¼úµ¿Çâ] À¯ÀÔ½Ä º¯¾Ð±âÀÇ ½ÃÀåºÐ¼® ¹× ±â¼úµ¿Çâ
2005-06-01 ¿ÀÈÄ 8:00:00
À¯ÀÔ½Ä º¯¾Ð±âÀÇ ½ÃÀåºÐ¼® ¹× ±â¼úµ¿Çâ±Û·Î¹ú °æÀï·ÂÀ» È®º¸ÇÏ°í ¼¼°è½ÃÀåÀ» ¼±Á¡Çϱâ À§ÇÏ¿© ¿ì¸®³ª¶óÀÇ º¯¾Ð±â Á¦Á¶¾÷üµéÀº ±â¼úÇõ½ÅÀ» ÅëÇÑ ÃÖ÷´Ü ±â¼úÀÇ È®º¸¿Í ÀÎÀçÀ°¼º µî°ú °°Àº º¯È­¿Í Çõ½ÅÀ» Ãß±¸Çϰí ÀÖ´Ù. ±×·¯³ª 2000³â ÀÌÈÄ Ã£¾Æ¿Â ºÒȲÀº ±¹³»°æ±â¸¦ ½É°¢ÇÏ°Ô À§Ãà½ÃÄÑ ÇØ¸¶´Ù »ý»ê½ÇÀûÀÌ °¨¼ÒÇϰí ÀÖÀ¸¸ç ƯÈ÷ 2004³â ÃʺÎÅÍ ¿À¸£±â ½ÃÀÛÇÑ ¿øÀÚÀç °¡°ÝÀÇ ÆøµîÀº ¸ðµç ±¹³»¿Ü Á¦Á¶¾÷üµéÀÇ ¾î·Á¿òÀ» ´õ¿í °¡Áß½Ã۰í ÀÖ´Ù. µû¶ó¼­ ¿ì¸®³ª¶óÀÇ º¯¾Ð±â Á¦Á¶¾÷üµéÀº ½Å±â¼úÀ» È®º¸ÇÏ°í ½ÅÁ¦Ç°À» °³¹ßÇÏ¿© Á¦Ç°À» ´Ùº¯È­ÇÏ°í ¿ø°¡Àý°¨À» ÇÏ¿© Á¦Ç°ÀÇ ±¹Á¦ °æÀï·ÂÀ» È®º¸ÇÏ´Â ÀÚ¸³ ±â¹ÝÀ» ¸¶·ÃÇÏ´Â °ÍÀÌ ½Ã±ÞÇÏ´Ù. 1887³â ¿ì¸®³ª¶ó¿¡ óÀ½À¸·Î Àü±â°¡ µµÀÔµÈ ÀÌÈÄ, ¿ì¸®³ª¶óÀÇ Àü·Â»ê¾÷Àº 1960³â´ëÀÇ °³¹ß ¼ºÀå±â¸¦ °ÅÃļ­ ÇöÀç¿¡ À̸£·¶À¸¸ç ÀÌ·¯ÇÑ ±¹³» Àü·Â»ê¾÷ÀÇ ¿ª»ç¸¦ ÃÖ°í ¼ÛÀüÀü¾Ð°ú ¹ßÀü¼³ºñ ¿ë·® ¸é¿¡¼­ »ìÆìº¸¸é 1923³â ¼­¿ï, °­¿øµµ°£ ¼ÛÀü¼±·Î¿¡¼­ 66kV°¡ ÅëÀüµÈ ÀÌ·¡ 1935³â¿¡ 154kV°¡ ÅëÀüµÇ¾ú°í 1976³âºÎÅÍ 345kV, 2001³âºÎÅÍ 765kV¸¦ ÃÖ°í ¼ÛÀüÀü¾ÐÀ¸·Î »ç¿ëÇϰí ÀÖ´Ù. Àü·Â¼Òºñ·®À» º¸¸é 1961³âµµ ÃÖ´ëÀü·Â ¼Òºñ·® 30.6¸¸kW¿¡¼­ 2004³âµµ ÃÖ´ëÀü·Â ¼Òºñ·® 5,126.4¸¸kW¸¦ ±â·ÏÇÏ¿´°í ¸Å³â ¾à 200¸¸kW¾¿ ¼Òºñ·®ÀÌ Áõ°¡ÇÏ¿© 2010³âµµ¿¡´Â 6,062¸¸kW, 2015³âµµ¿¡´Â 6,775¸¸kW¿¡ À̸¦ °ÍÀ¸·Î Àü¸ÁÇÑ´Ù. ÀÌ¿Í °°Àº Àü·Â ¼ö¿ä¸¦ °¨¾ÈÇÏ¿© Á¤ºÎ´Â ±¹³»ÀÇ ¹ßÀü¼³ºñ ¿ë·®À» 2005³â±îÁö 6,175¸¸kW, 2010³â¿¡ 7,694¸¸kW, 2015³â±îÁö´Â 7,892¸¸kW·Î ¹ßÀü¼³ºñ ¿ë·®À» Áõ°¡½Ãų °èȹÀ̸ç ÃÖ°í ¼ÛÀüÀü¾Ð ¶ÇÇÑ 2000³âºÎÅÍ 2011³â±îÁö 765kV·Î ½Â¾Ð½ÃŰ´Â °èȹÀÌ Â÷Áú ¾øÀÌ ÁøÇà Áß¿¡ ÀÖ´Ù. ÀÌ»ó°ú °°Àº Á¤ºÎ Á¤Ã¥À¸·Î ÀÎÇÏ¿© ±¹³»º¯¾Ð±â Á¦Á¶¾÷üµéÀº Á¡ÁøÀûÀ¸·Î ¼ºÀå¼¼°¡ È£ÀüµÉ °ÍÀ¸·Î ÆÇ´ÜÇÏ¸ç ¼¼°è½ÃÀå ¿ª½Ã Á¶¸¸°£ Ȱ¼ºÈ­ µÉ °ÍÀ¸·Î º¸¿© º¯¾Ð±â Á¦Á¶¾÷°èÀÇ Àü¸Á ¶ÇÇÑ ¹àÀ» °ÍÀ¸·Î ÆÇ´ÜµÈ´Ù. ±¹³»¿Ü ½ÃÀ嵿Çâ ¹× ÁßÀå±â °èȹ»ê¾÷ÀÚ¿øºÎ°¡ 2001³âµµ 1¿ù¿¡ ¹ßÇ¥ÇÑ Á¦5Â÷ Àå±â Àü·Â¼ö¿ä °èȹ¼­¿¡ µû¸£¸é ¿ì¸®³ª¶óÀÇ ÇâÈÄ Àü·Â ¼ö±Þ°èȹÀº ÇöÀç 2015³â±îÁö ¼ö¸³µÇ¾î ÀÖ´Â °ÍÀ¸·Î º¼ ¼ö ÀÖÀ¸¸ç ÀÌ·¯ÇÑ Àü·Â¼ö±Þ °èȹÀ» ¿¬µµº°·Î »ìÆìº¸¸é 2004³âµµ ¸»À» ±âÁØÀ¸·Î ¿ì¸®³ª¶óÀÇ Àü·Â¼³ºñ ¿ë·®Àº 5,994¸¸kWÀ̾úÀ¸¸ç 2005³âµµ¿¡´Â 6,175¸¸kW·Î 1³â µ¿¾È¿¡ 181¸¸KW°¡¡¡Áõ¼³ÀÌ µÉ °èȹÀ̰í ÇâÈÄ ¹ßÀü¿ë·®Àº 2015³âµµ¿¡ 7,892¸¸kW·Î Áõ¼³µÇ´Â °ÍÀ¸·Î °èȹµÇ¾î ÀÖ´Ù. µû¶ó¼­ 2015³âµµÀÇ Àü·Â ¼³ºñ¿ë·®Àº 2004³âµµ Àü·Â¼³ºñ ¿ë·®ÀÇ 31.6%°¡ Áõ¼³ÀÌ µÉ Àü¸ÁÀ̸ç ÀÌ¿¡ µû¶ó ¼ÛÀüÀü·Â ¶ÇÇÑ Áõ°¡ÇÒ °ÍÀ¸·Î ÆÇ´ÜµÈ´Ù.
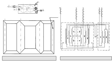
ÀÌ·¸°Ô Áõ°¡µÉ Àü·ÂÀ» ±¹³» Àü Áö¿ª¿¡ È¿À²ÀûÀ¸·Î ¼ÛÀüÇϱâ À§ÇÏ¿© 2000³âºÎÅÍ´Â ±¹³» ÃÖ°í ¼ÛÀüÀü¾ÐÀ» 345kV¿¡¼­ 765kV·Î ½Â¾Ð½ÃÄÑ ½Å¼­»ê, ½Å¾È¼º º¯Àü¼Ò °Ç¼³À» ¿Ï·áÇÏ¿© »ó¾÷ ¿îÀü Áß¿¡ ÀÖ°í ½Å°¡Æò, ½ÅÅÂ¹é º¯Àü¼Ò´Â ½Ã¿îÀü ÁßÀÌ¸ç ¼­ °æºÏ, ºÏ °æ³² º¯Àü¼Ò °Ç¼³ ¹× ½Å°í¸® ¹ßÀü¼Ò °Ç¼³ ÃßÁø µî 765kV ¼ÛÀüÀÌ È°¼ºÈ­ µÉ °ÍÀ¸·Î º¸À̸ç ÇâÈÄ °èÅë º° º¯Àü¼Ò °Ç¼³ °èȹÀº <Ç¥2>¿Í °°´Ù. µû¶ó¼­ ±¹³»½ÃÀåÀÇ Àü·Â±â±â ¼ö¿ä´Â °è¼Ó Áõ°¡ÇÒ °ÍÀ¸·Î ÆÇ´ÜµÇ¸ç ±× Áõ°¡À²Àº ³â Æò±Õ 2¹é¸¸¡­3¹é¸¸kW Á¤µµ·Î ¿¹»óµÈ´Ù. ¶ÇÇÑ ÇØ¿Ü½ÃÀåÀÇ Àü·Â±â±â ¼ö¿äµµ Áßµ¿À» ÁÖÃàÀ¸·Î Ȱ¼ºÈ­ µÉ °ÍÀ¸·Î ÃßÁ¤µÈ´Ù. ¿©±â¿¡¼­ Áö¿ªº°·Î ÇØ¿Ü½ÃÀåÀÇ Àü·Â±â±â ¼ö¿ä Áõ°¡À²°ú °æ±âÀü¸ÁÀ» »ìÆìº¸¸é ´ÙÀ½°ú °°´Ù. ù°, ¾Æ½Ã¾Æ ½ÃÀåÀÇ °æ¿ì, Áß±¹½ÃÀåÀÇ °ÅÁ¡ È®º¸°¡ ½Ã±ÞÇÏ´Ù. ¾Æ½Ã¾Æ ½ÃÀåÀÇ ¼ö¿ä Áõ°¡·®Àº ³â Æò±Õ ´ë·« 80¾ï ´Þ·¯ Á¤µµ°¡ µÉ °ÍÀ¸·Î ÆÇ´ÜµÇ³ª Á¦3¼¼°è±¹°¡ÀÇ Àú°¡°æÀïÀ¸·Î ¿ì¸®³ª¶óÀÇ ¼öÃâÃËÁø Ȱ¼ºÈ­´Â ±â´ëÇϱⰡ ¾î·Á¿ï °ÍÀ¸·Î ÆÇ´ÜµÈ´Ù. ÃÖ±Ù Áß±¹, ¸»·¹ÀÌÁö¾Æ µî 500KV ÀÌ»ó ±Ø Ãʰí¾Ð ¼ÛÀüÀ» °èȹÇϰí ÀÖÀ¸¹Ç·Î ±Ø ÃʰíÀü¾Ð º¯¾Ð±â ½ÃÀ尳ô ÃßÁøÀÌ ¹Ù¶÷Á÷ÇÏ´Ù. µÑ°, ¹ÌÁÖ½ÃÀåÀÇ °æ¿ì, Àü·Â¼ö¿ä Áõ°¡¿¡ µû¸¥ Àü·ÂºÎÁ· Çö»óÀ¸·Î ¼³ºñ ÅõÀÚ°¡ Ȱ¼ºÈ­ ¹× Àü·Â ±â±âÀÇ ¼ö¿ä°¡ ´Ù¼Ò Áõ°¡ µÉ °ÍÀ¸·Î Àü¸ÁµÇ¸ç ±× ¼ö¿ä Áõ°¡´Â ³â Æò±Õ ´ë·« 50¾ï ´Þ·¯ Á¤µµ°¡ µÉ °ÍÀ¸·Î ÆÇ´ÜµÈ´Ù. ±×·¯³ª Á¦3¼¼°èÀÇ Àú°¡ °æÀïÀÌ Ä¡¿­ÇÒ °ÍÀ¸·Î ¿¹»óµÇ¹Ç·Î ǰÁú¾ÈÁ¤ ¹× ½Å±â¼ú È®º¸ µî ±Û·Î¹ú °æÀï·Â¿¡ ´ëÇÑ Â÷º°È­ Àü·«ÀÌ ¿ä±¸ µÈ´Ù ¼Â°, À¯·´½ÃÀåÀÇ °æ¿ì, ÇâÈÄ °æÁ¦°¡ È£ÀüµÉ °ÍÀ¸·Î ¿¹»óµÇ¸ç ±× ¼ö¿ä Áõ°¡·®Àº ³â Æò±Õ ´ë·« 40¾ï ´Þ·¯°¡ µÉ °ÍÀ¸·Î ÆÇ´ÜµÇ³ª À¯·´°øµ¿Ã¼ÀÇ °æÁ¦ º¸È£Á¤Ã¥À¸·Î ¿ì¸®³ª¶óÀÇ º¯¾Ð±â Á¦Á¶¾÷ü°¡ À¯·´±¹°¡¿¡ º¯¾Ð±â¸¦ Á÷Á¢ ¼öÃâÇϱ⿡´Â ¾î·Á¿òÀÌ ¸¹À» °ÍÀ¸·Î ÆÇ´ÜµÈ´Ù. µû¶ó¼­ À¯·´Áö¿ª ȸ»ç¿Í °øµ¿À¸·Î ¼öÁÖ¸¦ ÃßÁøÇÏ¿© Á¦3¼¼°è¿¡ ³³Ç°ÇÏ´Â Àü·«ÀÌ ÇÊ¿äÇÏ´Ù. ³Ý°, Áßµ¿ÀÇ °æ¿ì¿¡´Â īŸ¸£, ³ªÀÌÁö¸®¾Æ, »ç¿ìµð µîÀÇ ±¹°¡¿¡¼­ Àü·Â»ç¾÷ÀÌ È°¹ßÇÏ°Ô ÃßÁøµÇ°í ÀÖÀ¸¸ç À̶óÅ©ÀÇ ÀüÈÄ º¹±¸·Î º¯¾Ð±âÀÇ ¼ö¿ä°¡ ±ÞÁøÀûÀ¸·Î È®´ëµÉ °ÍÀ¸·Î ¿¹»óµÈ´Ù. Àü·Â¼ö¿ä Áõ°¡À²ÀÌ ³â Æò±Õ ¾à 20%·Î Àü ¼¼°èÀûÀ¸·Î °¡Àå ³ôÀº ÆíÀ̱⠶§¹®¿¡ Àå±âÀûÀ¸·Î´Â Å« ½ÃÀåÀ¸·Î ºÎ»óÇÒ °¡´É¼ºÀÌ Å©¹Ç·Î ½ÃÀåÀ» ¼±Á¡ÇÏ¿© »çÀü¿¡ ±³µÎº¸¸¦ È®º¸ÇÏ´Â °ÍÀÌ Áß¿äÇÏ´Ù. ÀÌ»óÀº ÇâÈÄ ±¹³»¿Ü ½ÃÀå¿¡¼­ ¹ßÁÖµÉ ¼ö ÀÖ´Â Àü·Â±â±âÀÇ ´ë·«ÀûÀÎ Àü¸ÁÀ» ±â¼úÇÑ °ÍÀÌ¸ç ´ÙÀ½Àº ±¹³»¿Ü °í°´µéÀÌ ¼±È£Çϰí ÀÖ´Â º¯¾Ð±âÀÇ »ç¾ç ¹× Á¾·ù¸¦ Áß½ÉÀ¸·Î ¼±Áø±¹ÀÇ °í°´°ú ÈÄÁø±¹ÀÇ °í°´À» ºñ±³ÇÏ¿© ±â¼úÇϰíÀÚ ÇÑ´Ù. ¸ÕÀú ¼±Áø±¹ °í°´ÀÎ °æ¿ì Àü·Â°èÅëÀÌ ¾ÈÁ¤µÇ¾î ÀÖ°í Áß·®¹°À» ¿î¼ÛÇÒ ¼ö ÀÖ´Â À°·Î ¿î¼Û µµ·Î°¡ ´ëºÎºÐ È®º¸µÇ¾î Àֱ⠶§¹®¿¡ °íÀü¾Ð, ´ë¿ë·®ÀÇ Àú¼ÒÀ½, °íÈ¿À² ¹× ÃÖ±Ù ½Ä¹°¼º Àý¿¬À¯ º¯¾Ð±â µî ȯ°æ ģȭÀûÀÎ º¯¾Ð±â¸¦ ¼±È£Çϰí ÀÖ´Ù. °íÀü¾Ð, ´ë¿ë·®À» ¼±È£Çϰí ÀÖ´Â ÀÌÀ¯ Áß¿¡ ÇÑ °¡Áö´Â º¯¾Ð±â¸¦ ¿îÀüÇϴµ¥ ¼Ò¿äµÇ´Â À¯Áö º¸¼öºñ¸¦ ÁÙÀÏ ¼ö ÀÖ´Ù´Â ÀåÁ¡°ú ÃÖ±Ù¿¡ °³¹ßµÈ º¯¾Ð±âÀÇ °íÀåÁø´Ü ¹× ¿¹¹æÃ¼°è¸¦ °®Ãß¾î ¿î¿ëÇÔÀ¸·Î½á º¯¾Ð±âÀÇ ´ëÇü»ç°í¸¦ »çÀü¿¡ ¹æÁöÇÒ ¼ö ÀÖ°í Àú·ÅÇÑ °¡°ÝÀ¸·Î Áö¼ÓÀûÀÎ ¿ø°Ý°¨½Ã¸¦ ÇÔÀ¸·Î¼­ º¯¾Ð±âÀÇ ¿îÀü»óŸ¦ Ç׽à °¨½ÃÇÒ ¼ö ÀÖ´Ù´Â ÀåÁ¡ ¶§¹®ÀÌ´Ù. ¶ÇÇÑ Æ¯¼öÇÑ °æ¿ì ¼ÒÇü, °æ·®È­ µÈ º¹ÇÕÀý¿¬ ¹æ½ÄÀÇ º¯¾Ð±â¸¦ »ç¿ëÇÏ¸ç ±âÁ¸ º¯¾Ð±âÀÇ ¿ë·®À» Áõ´ë½Ã۱â À§ÇÑ ¹æ¹ýÀÇ Çϳª·Î º¯¾Ð±â Áß½ÉÀÇ ÀϺÎÀÎ ±Ç¼±¸¸À» ±³Ã¼ÇÏ´Â °æ¿ìµµ ÀÖ´Ù. À̿ʹ º°°³·Î °íÈ¿À² Àú Áß·® ÃÊÀüµµ º¯¾Ð±â °³¹ß¿¡ ¹ÚÂ÷¸¦ °¡Çϰí ÀÖ´Ù. ÈÄÁø±¹ÀÇ °æ¿ì¿¡´Â ÀÌ¿Í ¹Ý´ë·Î Àú Àü¾Ð, ¼Ò ¿ë·®ÀÇ º¯¾Ð±â¸¦ ¼±È£Çϰí ÀÖÀ¸¸ç ´ÜÀ§ Áö¿ªº°·Î ÇÊ¿äÇÑ ´Ù¾çÇÑ »ç¾çÀÇ º¯¾Ð±â¸¦ »ç¿ëÇϰí ÀÖ´Ù. 1998³âµµ ÀÌÈÄ ±¹³» º¯¾Ð±â Á¦Á¶¾÷üµéÀº ÇâÈÄ °æ¿µ¿©°ÇÀÌ È£ÀüµÉ °ÍÀ̶ó´Â ±â´ë ÇÏ¿¡ ¿¬±¸°³¹ß(R&D)ºñ¸¦ Áõ´ëÇÏ°í ¼ºÀå±â¹ÝÀ» È®ÃæÇÏ¿© ºê·£µåÀÇ °¡Ä¡¸¦ ±Ø´ëÈ­ÇÏ´Â µ¥¿¡ ¿ª·®À» ÁýÁßÇϰí ÀÖÀ¸¸ç ¼¼°è °¢ ±¹¿¡ ¼öÃâ±â¹ÝÀ» È®´ëÇϰí ÀÖ´Ù. ÀÌ¿Í °ü·Ã ¼±Áø ¾÷üµéÀº °æÀï½É¸®·Î ¿ì¸®³ª¶ó º¯¾Ð±â Á¦Á¶¾÷ü¿¡ ÇÙ½É ±â¼ú ÀÌÀüÀ» ±âÇÇÇϰí ÀÖ´Â ½ÇÁ¤ÀÌ´Ù.µû¶ó¼­ ÀÌÁ¦ ¿ì¸® ½º½º·Î ¼³°è ¹× Á¦Á¶±â¼úÀ» ÀÚ¸³È­ÇÏ¿©¾ß ÇÑ´Ù. ÇöÀç ÀϹÝÀûÀÎ º¯¾Ð±â¸¦ Á¦ÀÛÇÏ´Â µ¥´Â Å« ¾î·Á¿òÀÌ ¾øÀ¸¸ç, 765kV±Þ º¯¾Ð±â ¹× SF6 GAS Àý¿¬º¯¾Ð±âµµ »ó¿ëÈ­·Î ÇÔÀ¸·Î¼­ ±¹³» º¯¾Ð±âÁ¦Á¶¾÷ü ³ª¸§´ë·Î ¾î´À Á¤µµÀÇ ±â¼úÃàÀûÀº È®º¸µÈ °ÍÀ¸·Î º¼ ¼ö ÀÖ´Ù. ÀÌÁ¦ ¿ì¸® Á¦Á¶¾÷üµéÀº ºü¸¥ ½Ã°£ ³»¿¡ ±âÃʰúÇÐ ±â¼úÀ» È®º¸ÇÏ°í ½Å±â¼úÀ» Á¢¸ñ½ÃÄÑ ¼±Áø ¾÷üÀÇ ±â¼úÀ» ¿ì¸® °íÀ¯ÀÇ ±â¼ú·Î ¼ÒÈ­½ÃŰ´Â °ÍÀÌ ½Ã±ÞÇÑ °úÁ¦ÀÌ´Ù. ÃÖ±Ù ¿ì¸®³ª¶ó Àü±âÇÐȸ »êÇÏÀÇ º¯¾Ð±â working groupÀº »êÇÐÇùµ¿ ¿¬±¸ °úÁ¦¸¦ ¼öÇàÇÏ´Â µî TFT Ȱµ¿ÀÌ È°¹ßÇÏ°Ô ÁøÇàµÇ°í ÀÖ¾î ÁÁÀº ¼º°ú°¡ ±â´ëµÈ´Ù. ¿©±â¿¡¼­ ¿ì¸®³ª¶óÀÇ º¯¾Ð±â Á¦ÀÛ»çµéÀÌ °³¹ßÇØ ¿Â º¯¾Ð±âÀÇ °³¹ß¿ª»ç¸¦ »ìÆìº¸¸é 1967³â¿¡ 154kV±Þ º¯¾Ð±â¸¦ °³¹ß¿Ï·á ÇßÀ¸¸ç 1978³âµµ¿¡ 345kV±Þ º¯¾Ð±â, 1982³âµµ¿¡ ¸ôµå º¯¾Ð±â, 1999³âµµ¿¡´Â ±Ø Ãʰí¾Ð º¯¾Ð±âÀÎ 765kV±Þ º¯¾Ð±â ¹× 154kV±Þ SF6 GAS º¯¾Ð±â¸¦ °³¹ß, ¿Ï·áÇß´Ù. ¶ÇÇÑ 2000³â 6¿ù23ÀÏ ±¹³» ÃÖÃÊ·Î ´çÁøÈ­·Â 765kV º¯¾Ð±â°¡ »ó¾÷¿îÀü¿¡ µ¹ÀÔÇÔÀ¸·Î½á ÀÌÁ¦ ¿ì¸®³ª¶óµµ º»°ÝÀûÀ¸·Î 765kV ¹ßÀü ¹× ¼ÛÀü½Ã´ë·Î Á¢¾îµé¾ú´Ù.µû¶ó¼­ ÀÌÁ¦ ¿ì¸® º¯¾Ð±â Á¦ÀÛ¾÷üÀÇ ±â¼ú¼öÁØÀº ¼¼°èÀûÀÎ ¼öÁØÀ̶ó°í ÇÒ ¼ö ÀÖ´Ù. ´Ù¸¸ ¼³°è ¹× Á¦Á¶±â¼úÀ» µÞ¹ÞÄ§ÇØÁÖ´Â ±âÃʰúÇÐ ±â¼úÀÌ ¹Ì¾àÇÏ´Ù´Â °ÍÀÌ ¾Æ½¬¿òÀ̳ª ´ÙÇàÈ÷ ±¸ ¼Ò·Ã ¹× µ¿ À¯·´Áö¿ª¿¡ ±â¼ú ¼¾Å͸¦ ¼³Ä¡ÇÏ¿© ±âÃÊ ±â¼ú ¹× ÷´Ü±â¼ú À°¼º µî ¿¬±¸°³¹ß ÅõÀÚ¿¡ Àû±ØÀûÀ¸·Î Âü¿©Çϰí ÀÖ¾î Á¶¸¸°£ ¼¼°è ¼öÁØÀÇ ±â¾÷À¸·Î µµ¾àÇÒ ¼ö ÀÖÀ» °ÍÀ¸·Î È®½ÅÇÑ´Ù. ±¹³»¿Ü º¯¾Ð±â °³¹ßÇöȲ
±¹³»ÀÇ º¯¾Ð±â Á¦Á¶¾÷üµéÀÌ °³¹ßÇØ ¿Â Àü·Â¿ë º¯¾Ð±âÀÇ °³¹ß ¿ª»ç¸¦ »ìÆìº¸¸é 1967³â¿¡ ±¹³» ÃÖÃÊ·Î 154KV±Þ Àü·Â¿ë º¯¾Ð±â¸¦ °³¹ß ¿Ï·áÇßÀ¸¸ç 1978³âµµ¿¡´Â 345KV±Þ Àü·Â¿ë º¯¾Ð±â, 1982³âµµ¿¡´Â ¸ôµå º¯¾Ð±â¸¦ °³¹ßÇß´Ù. ÃÖ±Ù 1999³âµµ¿Í 2000³âµµ¿¡ Çö´ëÁß°ø¾÷Àº Çѱ¹Àü·Â°ø»çÀÇ ´çÁøÈ­·Â ¹ßÀü¼Ò¿¡ ¼³Ä¡µÈ ±Ø ÃÊ °í¾Ð º¯¾Ð±âÀÎ ´Ü»ó 765KV±Þ ÁÖ º¯¾Ð±â(204MVA) 7´ë¿Í ¿¬°è ´Ü±Çº¯¾Ð±â(370MVA) 4´ë¸¦ °¢°¢ ³³Ç°ÇßÀ¸¸ç µ¿ º¯¾Ð±â´Â 2000³â 6¿ù 23ÀÏ »ó¾÷¿îÀü¿¡ µ¹ÀÔÇß´Ù. ¶ÇÇÑ °°Àº ÇØÀÎ 1999³âµµ¿¡ Çö´ëÁß°ø¾÷Àº Çѱ¹Àü·Â°ø»çÀÇ 765KVº¯Àü¼Ò¿ë ±Ø Ãʰí¾Ð ´Ü±Çº¯¾Ð±â ¹× ÁöÇϺ¯Àü¼Ò³ª º¹ÇÕº¯Àü¼Ò¿¡ ¼³Ä¡µÉ 154KV±Þ SF6 °¡½ºÀý¿¬ º¯¾Ð±â¸¦ ½ÇÁúÀûÀ¸·Î °³¹ß ¿Ï·áÇÏ¿´´Ù. ÀÌ»óÀº Áö±Ý±îÁö ±¹³»ÀÇ º¯¾Ð±â Á¦Á¶¾÷üµéÀÌ °³¹ßÇØ¿Â Àü·Â¿ë º¯¾Ð±âÀÇ °³·«ÀûÀÎ ¿ª»çÀ̸ç Çö´ëÁß°ø¾÷ÀÌ °³¹ßÇÑ Àü·Â¿ë º¯¾Ð±âÀÇ Á¾·ù, Àü·Â¿ë º¯¾Ð±âÀÇ »ç¾ç, °³¹ß¿Ï·á ½ÃÁ¡, °³¹ß ¸ñÀû ¹× °³¹ßǰ¿¡ »ç¿ëµÈ Ư¼ö ÀÚÀç µîÀº ´ë·« ´ÙÀ½ <Ç¥9>°ú °°´Ù. ÇöÀç ÇØ¿Ü º¯¾Ð±â Á¦Á¶¾÷üµéÀÇ ±â¼ú°³¹ß µ¿ÇâÀ» ´ÜÀûÀ¸·Î Ç¥ÇöÇÑ´Ù¸é Á¦Ç°ÀÇ °æ·®È­ ¹× ȯ°æÄ£È­¼º Á¦Ç°À» °³¹ßÇϰí ÀÖ´Ù°í ¸»ÇÒ ¼ö ÀÖÀ¸¸ç ¹Ì·¡ÀÇ ±â¼ú·Î½á´Â ÃÊÀüµµÃ¼¸¦ ÀÌ¿ëÇÑ º¯¾Ð±âÀÇ ¼³°è ¹× Á¦Á¶±â¼ú °³¹ßÀ̶ó°í ¸»ÇÒ ¼ö ÀÖ´Ù. ÃÖ±Ù ÇØ¿Ü º¯¾Ð±â Á¦Á¶¾÷üµéÀÌ ¿¬±¸ °³¹ßÇÑ º¯¾Ð±â¸¦ Æ÷ÇÔÇÑ ÁßÀü±â±âÀÇ ¼³°è ¹× Á¦Á¶ ±â¼ú Áß °ý¸ñÇÒ ¸¸ °ÍÀº ABB»ç°¡ ÃÖ±Ù¿¡ °³¹ßÇÏ¿© ½Å·Ú¼º ½ÃÇèÀ» ÁøÇàÁßÀÎ DRYFORMER¿Í POWER-FORMER¶ó°í ¸»ÇÒ ¼ö ÀÖÀ¸¸ç ÀÌ Á¦Ç°µéÀÇ Æ¯Â¡À» »ìÆìº¸¸é Àü·Â¿ë º¯¾Ð±â³ª ¹ßÀü±â¸¦ Á¦ÀÛÇϸ鼭 Áö±Ý±îÁö ÁÖÀý¿¬Àç·Î »ç¿ëÇØ ¿Ô´ø µµÃ¼Àý¿¬Áö, ¼ºÇüÀý¿¬¹° ¹× Àý¿¬À¯ µîÀ» »ç¿ëÇÏÁö ¾Ê°í Àü·Â¿ë ÄÉÀ̺íÀÌ °®°í ÀÖ´Â ¿ì¼öÇÑ Àý¿¬Æ¯¼ºÀ» Ȱ¿ëÇÏ¿© Àü·Â¿ë º¯¾Ð±â¿Í ¹ßÀü±â¸¦ Á¦ÀÛÇÑ °ÍÀÌ´Ù. ÀÌ·¯ÇÑ Á¦Ç°À̾߸»·Î ȯ°æ ģȭÀûÀÎ Á¦Ç°ÀÎ µ¿½Ã¿¡ ¿ø°¡Àý°¨ Çü Á¦Ç°À̶ó°í ÇÒ ¼ö ÀÖ´Â °ÍÀÌ´Ù. ÇâÈÄ ½ÃÀåÀü¸ÁÃÖ±Ù Á¦Á¶¾÷ü ¹× °í°´µéÀÌ ¼±È£ÇÏ´Â Á¦Ç°Àº °íǰÁú, Àú¼ÒÀ½, Àú ¼Õ½Ç, °æ·®È­, ¹«°øÇØ µî ȯ°æ ģȭ Çü º¯¾Ð±â¸¦ ¿ä±¸Çϰí ÀÖÀ¸¸ç ±â¾÷Àº °í°´ °¨µ¿°ú À±¸®°æ¿µÀ» ÅëÇÏ¿© »çȸÀû Ã¥ÀÓ¿¡ ¾ÕÀå ¼³ °ÍÀ» ¸ñÇ¥·Î Çϰí ÀÖ´Ù. ÀÌ·¯ÇÑ ±â¾÷ÀÇ »çȸÀû Ã¥ÀÓÀǽİú ȯ°æº¯È­¸¦ °í·ÁÇÏ¿© ¿ì¸®³ª¶óÀÇ º¯¾Ð±â Á¦Á¶¾÷üµéµµ ȹ±âÀûÀÎ »ç°í¹æ½ÄÀÇ ÀüȯÀÌ ÇÊ¿äÇÑ ¶§¶ó°í »ý°¢ÇÑ´Ù. Áö±ÝºÎÅÍ¶óµµ ±¹³» ¾÷ü°£ È®º¸µÈ ±â¼ú¿¡ ´ëÇÏ¿© ±â¼úÀ» »óÈ£ ±³·ùÇÏ°í ½ÃÇà Âø¿ÀÇÑ ¹®Á¦Á¡¿¡ ´ëÇÏ¿© º¸¿Ï °³¼±ÇÏ´Â Çù·ÂüÁ¦·Î º¯È¯ÇÑ´Ù¸é ÇâÈÄ ±¹³»½ÃÀåÀÌ °³¹æµÈ ÈÄ¿¡µµ ¿ì¸®ÀÇ º¯¾Ð±â Á¦Á¶¾÷üµéÀº ¹«ÇѰæÀï üÁ¦ÀÇ ¾î·Á¿ò ¼Ó¿¡¼­µµ ÃæºÐÈ÷ ±Øº¹ÇÒ ¼ö ÀÖÀ» °ÍÀ¸·Î È®½ÅÇÑ´Ù. ÀÌ·¯ÇÑ ¼¼°è½ÃÀåÀÇ Ãß¼¼¿Í ȯ°æ º¯È­¸¦ °í·ÁÇÏ¿© ÇâÈÄ ¿ì¸®ÀÇ º¯¾Ð±â Á¦Á¶¾÷üµéÀÌ °øµ¿À¸·Î ´ëÃ³ÇØ¾ß ÇÒ ¸î °¡Áö »çÇ×À» ´ÙÀ½°ú °°ÀÌ ±¸Ã¼ÀûÀ¸·Î Á¦½ÃÇϰíÀÚ ÇÑ´Ù.ù°, ±¹³» º¯¾Ð±â Á¦Á¶¾÷ü°£ ºÎǰÀÇ È£È¯¼º ±¸Ãà ¹× ±¹»êÈ­¸¦ ÅëÇÏ¿© ¿ø°¡Àý°¨À» µµ¸ðÇÏ°í µÑ°, ÇØ¿Ü½ÃÀå¿¡ ´ëÇÑ ÁÖ¿ä Á¤º¸¸¦ °øÀ¯ÇÏ°í »óÈ£ Çù·Âü°è¸¦ ±¸ÃàÇÏ¸ç ¼Â°, ±¹³»ÀÇ º¯¾Ð±â Á¦Á¶¾÷üµéÀÌ ±â¼úÀÚ¸³À» ÅëÇÏ¿© ½Å±â¼úÀ» È®º¸Çϰí Á¦Á¶¾÷ü, ÇÐ°è ¹× ¿¬±¸±â°üÀÇ ¿¬°èü°è¸¦ º¸´Ù °­È­, º¯¾Ð±â Á¦ÀÛ¿¡ ÇÊ¿äÇÑ ±âÃʰúÇÐ ±â¼úÀ» È®¸³ÇÏ¿© ½ÅÁ¦Ç° °³¹ß¿¡ ÁÖ·ÂÇÏ¿©¾ß ÇÑ´Ù, ÀÌ·¸°Ô ¿ì¸®³ª¶ó Á¦ÀÛ»ç °£ ¹× »êÇÐ ÇùÁ¶Ã¼Á¦°¡ ±ä¹ÐÇÏ°Ô À¯ÁöµÇ°í ½ÅÁ¦Ç° °³¹ß¿¡ Àü·ÂÇÒ °æ¿ì ³â Æò±Õ ¼ö¿ä·®ÀÌ 170¾ï ´Þ·¯ ÀÌ»óÀÎ ¼¼°è½ÃÀå¿¡¼­ ¿ì¸®ÀÇ º¯¾Ð±â Á¦Á¶¾÷üµéÀº ÃæºÐÇÑ ¹°·®À» È®º¸ÇÒ ¼ö ÀÖÀ» °ÍÀÌ¸ç º¸´Ù °­·ÂÇÑ °æÀï·ÂÀ» È®º¸ÇÏ°Ô µÉ °ÍÀ¸·Î È®½ÅÇÑ´Ù.
À̿ܿ¡µµ ½ÃÀå±Ô¸ð°¡ Å« Áß±¹½ÃÀå¿¡ °ÅÁ¡À» È®º¸Çϰí ÁÖ¿ä½ÃÀå¿¡ ÇöÁö µ¶¸³¹ýÀÎÀ» ¼³¸³, Áö¿ªº° ±³µÎº¸¸¦ ¸¶·ÃÇÏ¿© öÀúÇÑ ÇöÁöÈ­ Àü·«À» ÃßÁøÇÑ´Ù¸é ¿ì¸®ÀÇ º¯¾Ð±â Á¦Á¶¾÷üµéÀÇ ¹Ì·¡´Â º¸´Ù ¹àÀ» °ÍÀÌ´Ù. ¶ÇÇÑ ÇâÈÄ Áö¼ÓÀûÀÎ °í¼ºÀåÀÌ ¿¹»óµÇ´Â °íºÎ°¡ Á¦Ç°¿¡ ÁýÁß ÅõÀÚÇϰí, ±Û·Î¹ú ¼öÁØÀÇ Â÷º°È­ µÈ ¿¬±¸°³¹ß ¹× ¸¶ÄÉÆÃ Àü·«À» Àü°³ÇÑ´Ù¸é ¸ÓÁö ¾Ê¾Æ ¼¼°è½ÃÀåÀ» ¿ì¸® Çѱ¹ÀÇ Á¦Á¶¾÷üµéÀÌ ÁÖµµÇÒ °ÍÀ¸·Î È®½ÅÇÑ´Ù.

<Energy News>
http://www.energy.co.kr

¼­¿ï¸¶Æ÷±¸ ¼º»ê·Î 124, 6Ãþ(¼º»êµ¿,´ö¼ººôµù)
TEL : 02-323-3162~5  |  FAX : 02-322-8386
Á¤±â°£Ç๰µî·Ï¹øÈ£ : ¸¶Æ÷ ¶ó00108  |  Åë½ÅÆÇ¸Å¾÷½Å°í¹øÈ£ : ¸¶Æ÷ Åë½Å Á¦ 1800È£
°³ÀÎÁ¤º¸°ü¸®Ã¥ÀÓÀÚ : °­Ã¢´ë ÆÀÀå (02-322-1201)

COPYRIGHT 2013 JEONWOO PUBLISHING Corp. All Rights Reserved.
Family Site
³×À̹ö Æ÷½º
ȸ»ç¼Ò°³  |  ¸Åü¼Ò°³  |  Á¤±â±¸µ¶¼¾ÅÍ  |  »ç¾÷Á¦ÈÞ  |  °³ÀÎÁ¤º¸Ãë±Þ¹æÄ§  |  ÀÌ¿ë¾à°ü  |  À̸ÞÀÏÁÖ¼Ò ¹«´Ü¼öÁý °ÅºÎ  |  ³×À̹ö Æ÷½ºÆ®  |  ¨Ï Àü¿ì¹®È­»ç